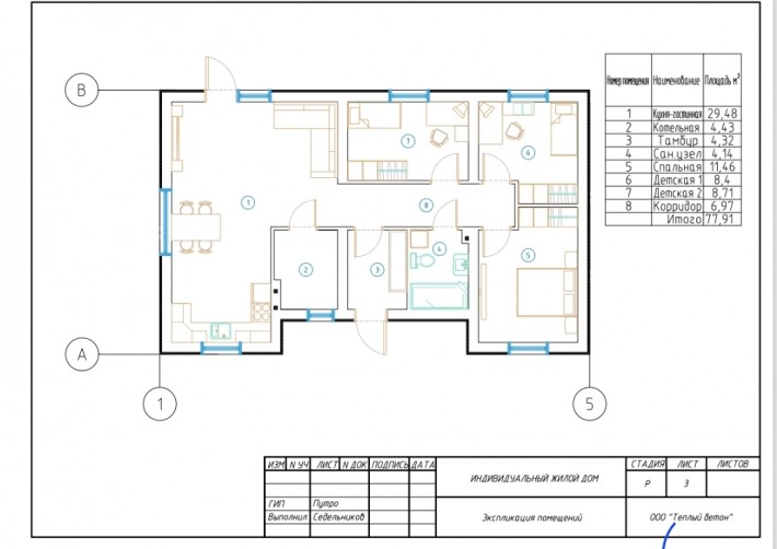
Один из самых востребованных проектов для семей из 3–4 человек – "Акварель-01-25". За счет большой гостиной, совмещенной с кухней, этот дом прекрасно подойдет не только для круглогодичного проживания, но и как дача, готовая принять своих постояльцев и летом, и зимой. Материал стен – полистиролбетон, особенность которого – сохранять приятную прохладу в жаркое лето и долго сохранять тепло в морозы.
1. Фундамент - железобетонная плита – самый надежный фундамент, который подходит для любых грунтов!
2. Стены наружные - блок из полистиролбетона (ячеистый бетон). Толщина 300мм – очень тёплые, теплее кирпича в 7 раз, теплее дерева в 2 раза, теплее газобетона и совершенно не боятся намокания! Монтаж блоков осуществляется на "теплый" клей для ячеистых бетонов.
3. Стены внутренние - несущие – блок из ячеистого бетона 300мм, перегородки – блок из ячеистого бетона 100мм с отделкой ГКЛ с двух сторон – отличная шумоизоляция!
4. Фасад – комбинированный – сочетание облицовочного кирпича под рваный камень Брикстоун и имитации бруса, обработанной качественным антисептиком Tikkurila, с сохранением текстуры древесины!
5. Кровля – гибкая черепица Шинглас – срок службы гораздо больше, чем у металлочерепицы, отличный внешний вид и никакого барабана при дожде! Подшивка карнизов и потолка крыльца брашированным деревом с эффектом старения – очень красиво!
6. Утепление кровли – эковата 250мм – 100% заполнение механизированным методом, отсутствие мостиков холода!
7. Окна – пятикамерный профиль VEKA – отличается от своих конкурентов своим высоким качеством и усиленным профилем. На окнах используется надёжная проверенная временем австрийская фурнитура MAKO.
8. Входная дверь – металлическая с терморазрывом Центурион.
9. Отделка стен – во всех комнатах гипсокартон с финишной шпатлевкой, в котельной кафель, в сан узле штукатурка цементно-песчаная.
10. Отделка пола – полусухая стяжка – идеально ровный пол!
11. Электричество – 15кВт, выполнена разводка, временное освещение внутри помещений, смонтированы фасадные светильники!
12. Вода – от центральной скважины в обществе, разводка под землей, на глубине ниже промерзания грунта, выполнена разводка внутри дома.
13. Канализация – железобетонный септик с переливом – отличное решение, откачка не более 1 раза в год.
14. Отопление – в котельной смонтирован газовый котёл Navien 13 кВт и резервный электрический котёл Zota 12кВт, отопление дома выполнено тёплым полом, ни каких приборов отопления на стенах!
Свяжитесь с нами – и мы создадим дом, который идеально подойдёт именно вам!
Выбор местоположения
Мы свяжемся с Вами в течение дня.